You are using an outdated browser. For a faster, safer browsing experience, upgrade for free today.

Pawilon handlowy 17m2

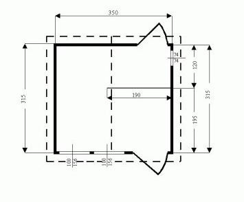
Pawilon handlowy o pow. 17m2 wykonany systemem szkieletowym oferowany w elewacji drewnianej. W standardzie ocieplony wełną mineralną o grubości 5 cm z paroizolacją, wykończony wewnątrz płytą OSB lub boazerią. Pawilon posiada stałe wystawowe okna pcv o wym. 100x156 cm bez szyb oraz okno otwieralne przeszklone szybą zespoloną. Konstrukcja pawilonu umożliwia zastosowanie dowolnej liczby okien i drzwi. Wysokość wnętrza pawilonu wynosi do 2,5 m do 3 m. Ogólny rozrys pawilonu można zobaczyć w dodatkowych fotografiach. Firma wykonuje także pawilony w oparciu o projekty dostarczone przez klienta.

Powierzchnia/ cena [zł] elewacja drewniana
pow. 17 m2 19.550,-

+ montaż : 18%

Do chwili ustabilizowania się cen materiałów budowlanych na rynku cennik jest nieaktualny. Aby poznać aktualną cenę prosimy o kontakt telefoniczny lub e-mailowy. wszystkie podane ceny są cenami brutto

W cenie pawilonu uwzględniono:

  • ocieplenie wełną mineralną gr. 5 cm (ściany, dach)
  • ściany wykonane z podwójnej deski o przekroju: deska 16 mm+folia+wełna 5 cm+folia+ deska 12 mm
  • wysokość ścian 250 cm
  • wykończenie wnętrza w boazerii lub w płycie osb
  • ściankę wewnętrzną wydzielającą zaplecze
  • okna stałe wystawowe stałe bez szyb o wym 100x156 cm 2 szt
  • okno otwieralne pcv kolor biały, pakiet 2-szybowy wraz z klamką
  • drzwi wejściowe wraz z klamką, zamkiem i kluczem do drzwi
  • dach ocieplony wełną mineralną 5 cm wykończony w boazerii
  • dach kryty papą podkładową (istnieje możliwość pokrycia dachu blachą lub gontem za dopłatą)
  • wszystkie elementy konstrukcyjne, wykończeniowe i montażowe
  • wykonana impregnacja drewna przeciwogniowa i przeciwgrzybiczna