You are using an outdated browser. For a faster, safer browsing experience, upgrade for free today.

GWAREK

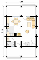
Piękny i stylowy dom drewniany wykonany z bala okrągłego o zwartej budowie proponowany jako dom mieszkalny lub jako komfortowy dom letniskowy. Oferowany z zadaszonym ganeczkiem, tarasami, balkonikami z obu stron domu, wydzielonymi pomieszczeniami parteru: wc, kuchnią wraz z jadalnią oraz przytulnym pokojem dziennym. Na poddaszu możliwość wydzielenia łazienki oraz dwóch sypialni. Istnieje możliwość wprowadzenia dowolnych zmian adaptacyjnych budynku, wyboru innego pokrycia dachowego oraz wykończenia wnętrza w różnych systemach. Oferowany o pow. całk. 180 m2. Wymagany fundament. Kąt nachylenia dachu: 40 stopni. Całkowita wysokość do szczytu: 681 cm. Na poddaszu zastosowano ścianki pionowe na wysokość 41 cm. Schemat budynku można zobaczyć w dodatkowych fotografiach. Dom oferowany z litej belki 8 cm lub z bala okrągłego o średnicy 18 cm

Powierzchnia całkowita [m2]/ cena [zł] Nieocieplony
kryty blachą
Ocieplony
kryty blachą
Wykonany z litej belki o gr. 8 cm 388.920,- 583.200,-
Wykonany z bala o średnicy 18 cm 583.200,- -

+ montaż 20%
Ceny brutto

Do chwili ustabilizowania się cen materiałów budowlanych na rynnku cennik jest nieaktualny. Aby poznać aktualną cenę prosimy o kontakt telefoniczny lub e-mailowy

W cenie domu nieocieplonego uwzględniono:

  • ściany wykonane z belki gr. 8 cm lub z bala o średnicy 18 cm
  • podłogę drewniana gr. 28 mm
  • wysokość parteru 250 cm
  • na poddaszu ścianki pionowe na wysokość 41 cm
  • dach symetryczny dwuspadowy
  • dach deskowany
  • okna pcv obustronny kolor, pakiet 3-szybowy
  • drzwi główne metalowe
  • drzwi na taras pcv obustronny kolor, pakiet 3-szybowy
  • drzwi balkonowe obustronny kolor, pakiet 3-szybowy
  • wiatrołap wewnętrzny
  • schody na poddasze
  • zadaszony ganek o wym. 744x240 cm
  • zadaszony taras o wym. 744x240 cm
  • na poddaszu dwa balkony o wym. 744x240 cm
  • wydzieloną łazienkę
  • wydzieloną kuchnię
  • wydzieloną jadalnię
  • na tarasie i ganku podłogę wykonaną z deski
  • impregnację drewna przeciwogniową i przeciwgrzybiczną
  • impregnację podwalin

Cennik nie stanowi oferty handlowej w rozumieniu art. 66 par.1 Kodeksu Cywilnego.