You are using an outdated browser. For a faster, safer browsing experience, upgrade for free today.

SOKOŁEK 45

Dom letniskowy z poddaszem wykonywany systemem szkieletowym Domhurt jako producent domów letniskowych. Szerokość domu: 450cm. Kąt dachu: 45º. W standardzie posiada niezadaszony taras, zadaszony ganek i balkon, na parterze ściany proste na wysokość 220 cm. Proponowany jest o powierzchni od 42 m2 do 80 m2. Oferowany jako dom nieocieplony lub jako dom kompletnie ocieplony wełną mineralną 5 cm. Istnieje możliwość dowolnego wydłużania i skracania domku, rozbudowy tarasu oraz wprowadzania innych zmian adaptacyjnych. Dom stawiany jest na bloczkach betonowych -nie wymaga fundamentu. Schemat budynku można zobaczyć w dodatkowych fotografiach. Cena standardowa nie uwzględnia okiennic, lady kuchennej oraz wydzieleń wewnętrznych (widocznych na zdjęciach i rzutach domu). Można je zamówić za dodatkową opłatą. 

Powierzchnia całkowita [m2]/ cena [zł] Nieocieplony
kryty blachą
Ocieplony
kryty blachą
pow. 42,5m2 - 4 segm.
/pow. zabudowy 14,2m2
43.994,- 48.695,-
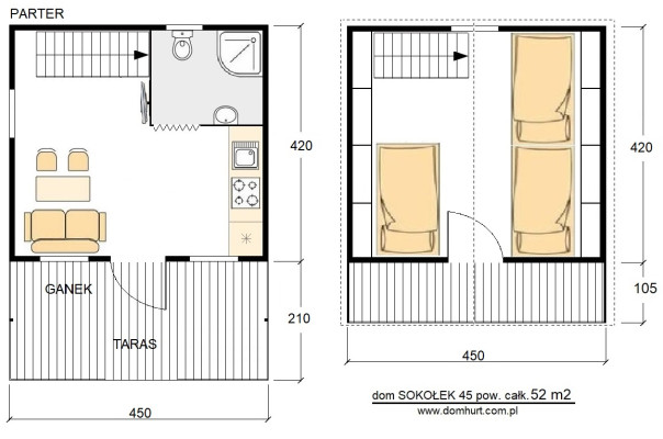
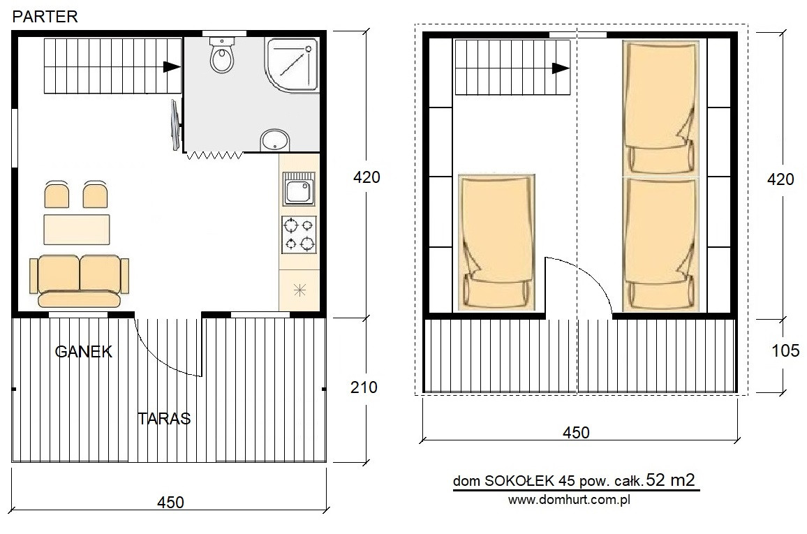
pow. 52m2 - 5 segm.
/pow. zabudowy 19 m2
53.852,- 59.468,-
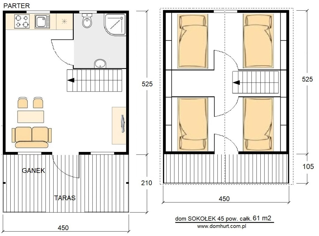
pow. 61m2 - 6 segm.
/pow. zabudowy 23,6 m2
62.994,- 69.674,-
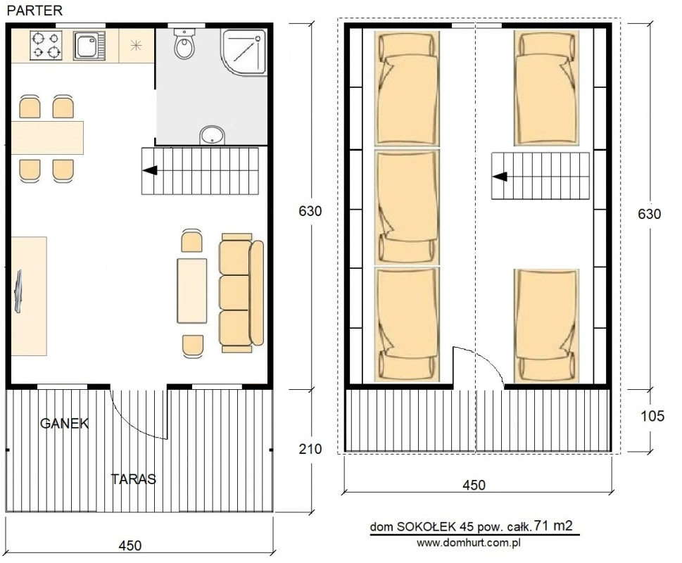
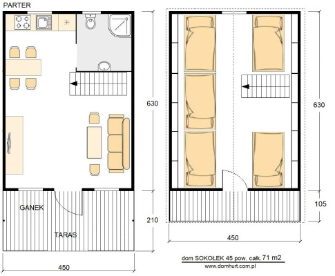
pow. 71m2 - 7 segm.
/pow. zabudowy 28,3 m2
71.836,- 80.993,-
pow. 80m2 - 8 segm.
/pow. zabudowy 33 m2
82.580,- 91.220,-

+ montaż 18%
wszystkie podane ceny są cenami brutto

W cenie domu nieocieplonego uwzględniono:

  • ściany wykonane z deski 22 mm
  • podłogę wewnętrzną drewnianą
  • wysokość parteru 220 cm
  • na parterze ściany proste
  • skos zaczyna się na poddaszu
  • dach dwuspadowy wykończony w desce boazeryjnej
  • okna pcv kolor biały wraz z klamkami
  • drzwi główne drewniane lub metalowe  wraz z klamką, zamkiem i kluczem do drzwi
  • drzwi balkonowe pcv kolor biały 
  • schodki na poddasze typu drabinkowego z poręczą z jednej strony schodów
  • zadaszony balkon
  • zadaszony ganek
  • niezadaszony taras
  • drewniane barierki na balkonie, ganku i tarasie
  • na ganku i tarasie podłogę wykonaną z deski
  • dach kryty blachą połysk (istnieje możliwość pokrycia dachu gontem za dopłatą)
  • wszystkie elementy konstrukcyjne i montażowe
  • elementy ścian i konstrukcji montowane są za pomocą zszywek, gwoździ i wkrętów
  • impregnację drewna przeciwogniową i przeciwgrzybiczną /Fobos/
  • impregnację podwalin /Fobos/
  • 1 komplet bloczków betonowych

W cenie domu ocieplonego uwzględniono:

  • kompletne ocieplenie domu wełną mineralną gr. 5 cm (podłoga, ściany, dach)
  • ściany wykonane z podwójnej deski o przekroju: deska 16 mm+folia+wełna 5 cm+folia+ deska 12 mm
  • wysokość parteru 220 cm
  • na parterze ściany proste
  • skos zaczyna się na poddaszu
  • wykończenie domu w boazerii
  • podłogę wewnętrzną drewnianą
  • dolną podłogę ocieploną wełną mineralną 5 cm
  • okna pcv kolor biały  wraz z klamkami
  • drzwi główne drewniane lub metalowe  wraz z klamką, zamkiem i kluczem do drzwi
  • drzwi balkonowe pcv kolor biały
  • schodki na poddasze typu drabinkowego z poręczą z jednej strony schodów
  • zadaszony balkon
  • zadaszony ganek
  • niezadaszony taras
  • drewniane barierki na balkonie, ganku i tarasie
  • na ganku i tarasie podłogę wykonaną z deski
  • dach ocieplony wełną mineralną 5 cm wykończony w boazerii
  • dach kryty blachą połysk (istnieje możliwość pokrycia dachu gontem za dopłatą)
  • wszystkie elementy konstrukcyjne i montażowe
  • elementy ścian i konstrukcji montowane są za pomocą zszywek, gwoździ i wkrętów
  • impregnację drewna przeciwogniową i przeciwgrzybiczną /Fobos/
  • impregnację podwalin /Fobos/
  • 1 komplet bloczków betonowych

Istnieje możliwość zamówienia:

  • wydzieleń wewnętrznych
  • domu ocieplonego wełną 10 cm lub 15 cm
  • zadaszenia tarasu
  • rozbudowy tarasu
  • zabudowy balkonu i ganka
  • okien drewnianych
  • okiennic na okna
  • paneli podłogowych
  • malowania zewnętrznego
  • instalacji elektrycznych
  • instalacji wod-kan
  • orynnowania
  • utwardzenia terenu
  • fundamentu

Cennik nie stanowi oferty handlowej w rozumieniu art. 66 par.1 Kodeksu Cywilnego.