You are using an outdated browser. For a faster, safer browsing experience, upgrade for free today.

SOKOŁEK

Dom letniskowy z poddaszem wykonany systemem szkieletowym. Jego konstrukcja oparta na segmentach umożliwia dowolne zmiany powierzchniowe. Wszystko co znajduje się pod dachem mieści się w danej wersji segmentowej. Zastosowane ścianki pionowe na 1,20 m dają większe możliwości adaptacyjne wnętrza. W standardzie dom wyposażono w  taras o długości 1,05m, zadaszony ganek, zadaszony balkonik. Proponowany w różnych wersjach powierzchniowych od 37 m2 do 71 m2. Stawiany na bloczkach betonowych - nie wymaga fundamentu. Schemat domu można zobaczyć w dodatkowych fotografiach. Cena nie obejmuje wydzieleń wewnętrznych widocznych na zdjęciach i rzutach domu.

Powierzchnia całkowita [m2]/ cena [zł] Nieocieplony
kryty blachą
Ocieplony
kryty blachą
pow. 37m2 - 4 segm.
/pow. zabudowy 14,2 m2
38.462,- 42.458,-
pow. 45m2 - 5 segm.
/pow. zabudowy 19 m2
46.670,- 51.530,-
pow. 53m2 - 6 segm.
/pow. zabudowy 23,6 m2
54.878,- 60.602,-
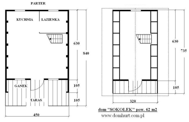
pow. 62m2 - 7 segm.
/pow. zabudowy 28,3 m2/2
63.997,- 70.308,-
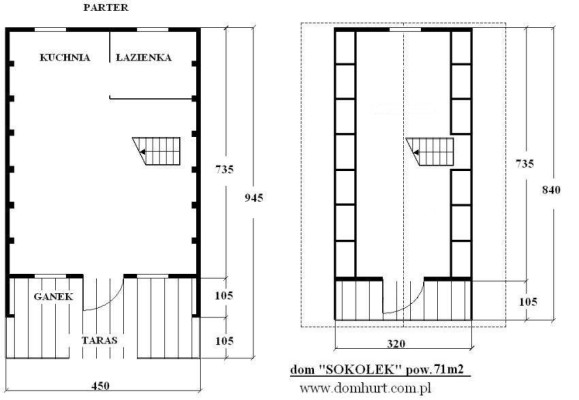
pow. 71m2 - 8 segm.
/pow. zabudowy 33 m2/2
73.336,- 80.996,-

+ montaż 18% 
wszystkie podane ceny są cenami brutto  

W cenie domu nieocieplonego uwzględniono:

  • ściany wykonane z deski 22 mm
  • podłogę wewnętrzną drewnianą
  • wysokość parteru 220 cm
  • na parterze ścianki pionowe na wysokość 120 cm
  • dach dwuspadowy wykończony w desce boazeryjnej
  • okna pcv kolor biały wraz z klamkami
  • drzwi główne drewniane lub metalowe  wraz z klamką, zamkiem i kluczem do drzwi
  • drzwi balkonowe pcv kolor biały
  • schodki na poddasze typu drabinkowego z poręczą z jednej strony schodów
  • zadaszony balkon
  • zadaszony ganek
  • niezadaszony taras
  • drewniane barierki na balkonie, ganku i tarasie
  • na ganku i tarasie podłogę wykonaną z deski
  • dach kryty blachą połysk (istnieje możliwość pokrycia dachu gontem za dopłatą)
  • wszystkie elementy konstrukcyjne i montażowe
  • elementy ścian i konstrukcji montowane są za pomocą zszywek, gwoździ i wkrętów
  • impregnację drewna przeciwogniową i przeciwgrzybiczną /Fobos/
  • impregnację podwalin /Fobos/
  • 1 komplet bloczków betonowych

W cenie domu ocieplonego uwzględniono:

  • kompletne ocieplenie domu wełną mineralną gr. 5 cm (podłoga, ściany, dach)
  • ściany wykonane z podwójnej deski o przekroju: deska 16 mm+folia+wełna 5 cm+folia+ deska 12 mm
  • wysokość parteru 220 cm
  • na parterze ścianki pionowe na wysokość 120 cm
  • wykończenie domu w boazerii
  • podłogę wewnętrzną drewnianą
  • dolną podłogę ocieploną wełną mineralną 5 cm
  • okna pcv kolor biały wraz z klamkami
  • drzwi główne drewniane lub metalowe wraz z klamką, zamkiem i kluczem do drzwi
  • drzwi balkonowe pcv kolor biały
  • schodki na poddasze typu drabinkowego z poręczą z jednej strony schodów
  • zadaszony balkon
  • zadaszony ganek
  • niezadaszony taras
  • drewniane barierki na balkonie, ganku i tarasie
  • na ganku i tarasie podłogę wykonaną z deski
  • dach ocieplony wełną mineralną 5 cm wykończony w boazerii
  • dach kryty blachą połysk (istnieje możliwość pokrycia dachu gontem za dopłatą)
  • wszystkie elementy konstrukcyjne i montażowe
  • elementy ścian i konstrukcji montowane są za pomocą zszywek, gwoździ i wkrętów
  • impregnację drewna przeciwogniową i przeciwgrzybiczną /Fobos/
  • impregnację podwalin /Fobos/
  • 1 komplet bloczków betonowych

Istnieje możliwość zamówienia:

  • wydzieleń wewnętrznych
  • domu ocieplonego wełną 10 cm lub 15 cm
  • rozbudowy tarasu
  • zabudowy balkonu i ganka
  • okien drewnianych
  • okiennic na okna
  • paneli podłogowych
  • malowania zewnętrznego
  • instalacji elektrycznych
  • instalacji wod-kan
  • orynnowania
  • utwardzenia terenu
  • fundamentu

Cennik nie stanowi oferty handlowej w rozumieniu art. 66 par.1 Kodeksu Cywilnego.