You are using an outdated browser. For a faster, safer browsing experience, upgrade for free today.

MEWA

Dom letniskowy wykonywany systemem szkieletowym w DomHurt jako producent domów letniskowych. Szerokość domu: 490 cm. Kąt dachu: 45 stopni.  W standardzie posiada niezadaszony taras, zadaszony ganek i balkon, na parterze ściany proste na wysokość 220 cm. Proponowany jest o powierzchni całk. od 47 m2 do 88 m2. Oferowany jako dom nieocieplony lub jako dom kompletnie ocieplony wełną mineralną 5 cm. Istnieje możliwość dowolnego wydłużania i skracania domu, rozbudowy tarasu oraz wprowadzania innych zmian adaptacyjnych. Dom stawiany na bloczkach betonowych -nie wymaga fundamentu. Schemat budynku można zobaczyć w dodatkowych fotografiach. Cena nie obejmuje okiennic oraz wydzieleń wewnętrznych widocznych na zdjęciach i rzutach domu. Wysokość do szczytu: 488 cm

Powierzchnia całkowita [m2]/ cena [zł] Nieocieplony
kryty blachą
Ocieplony
kryty blachą
pow. 47m2 - 4 segm.
/pow. zabudowy 17,5 m2
50.752,- 55.828,-
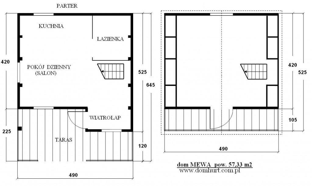
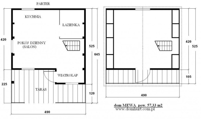
pow. 57,33m2 -5 segm.
/pow. zabudowy 23 m2
61.797,- 67.989,-
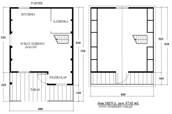
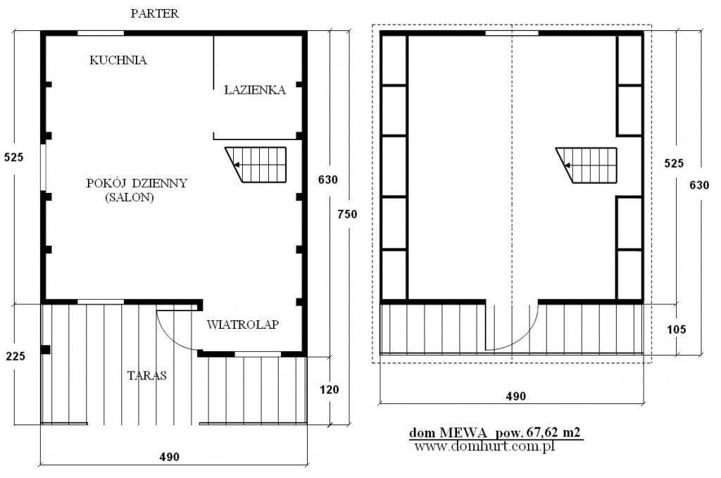
pow. 67,62m2 -6 segm.
/pow. zabudowy 28m2
72.799,- 80.102,-
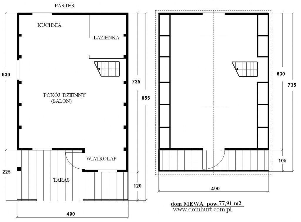
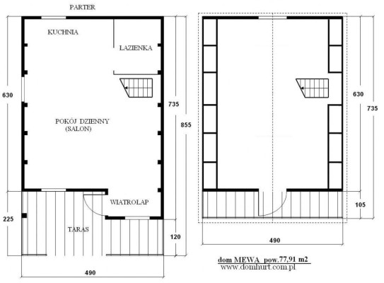
pow. 77,91m2 -7 segm.
/pow. zabudowy 33m2
83.801,- 92.216,-
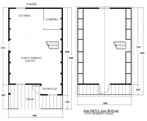
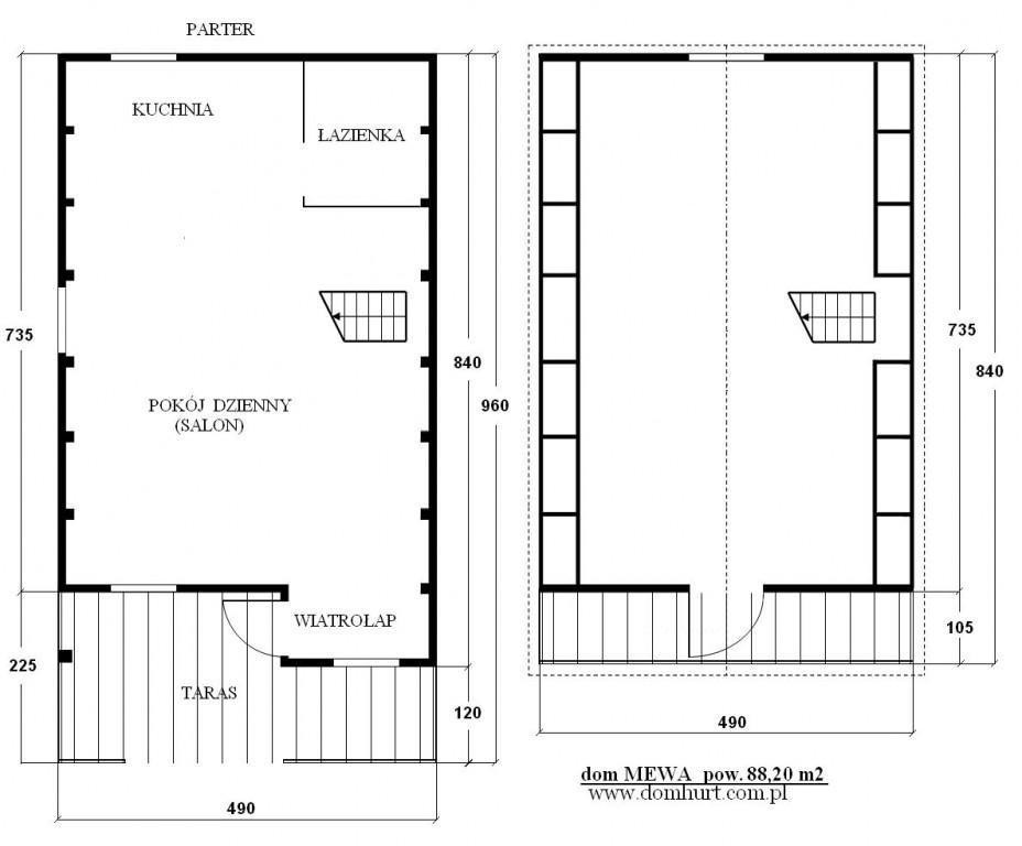
pow. 88,2m2 - 8 segm.
/pow. zabudowy 38 m2
94.803,- 104.329,-

+ montaż 18%
wszystkie podane ceny są cenami brutto 

W cenie domu nieocieplonego uwzględniono:

  • ściany wykonane z deski 22 mm
  • podłogę wewnętrzną drewnianą
  • wysokość parteru 220 cm
  • na parterze ściany proste
  • skos zaczyna się na poddaszu
  • dach dwuspadowy
  • okna pcv kolor biały wraz z klamkami
  • drzwi główne drewniane lub metalowe  wraz z klamką, zamkiem i kluczem do drzwi
  • drzwi balkonowe przeszklone
  • schodki na poddasze typu drabinkowego z poręczą z jednej strony schodów
  • wiatrołap o wym. 200x105 cm
  • zadaszony balkon
  • zadaszony taras o wym. 290x105 cm
  • niezadaszony taras o wym. 490x120 cm
  • drewniane barierki na balkonie i tarasie
  • na tarasie podłoga wykonana z deski
  • dach kryty blachą połysk (istnieje możliwość pokrycia dachu gontem za dopłatą)
  • wszystkie elementy konstrukcyjne i montażowe
  • elementy ścian i konstrukcji montowane są za pomocą zszywek, gwoździ i wkrętów
  • impregnację drewna przeciwogniową i przeciwgrzybiczną /Fobos/
  • impregnację podwalin /Fobos/
  • 1 komplet bloczków betonowych

W cenie domu ocieplonego uwzględniono:

  • kompletne ocieplenie domu wełną mineralną gr. 5 cm (podłoga, ściany, dach)
  • ściany wykonane z podwójnej deski o przekroju: deska 16 mm+folia+wełna 5 cm+folia+ deska 12 mm
  • wysokość parteru 220 cm
  • na parterze ściany proste
  • skos zaczyna się na poddaszu
  • wykończenie domu w boazerii
  • podłogę wewnętrzną drewnianą
  • dolną podłogę ocieploną wełną mineralną 5 cm
  • okna pcv kolor biały wraz z klamkami
  • drzwi główne drewniane lub metalowe  wraz z klamką, zamkiem i kluczem do drzwi
  • drzwi balkonowe przeszklone
  • schodki na poddasze typu drabinkowego z poręczą z jednej strony schodów
  • wiatrołap o wym. 200x105 cm
  • zadaszony balkon
  • zadaszony taras o wym. 290x105 cm
  • niezadaszony taras o wym. 490x120 cm
  • drewniane barierki na balkonie i tarasie
  • na tarasie podłoga wykonana z deski
  • dach ocieplony wełną mineralną 5 cm wykończony w boazerii
  • dach kryty blachą połysk(istnieje możliwość pokrycia dachu gontem za dopłatą)
  • wszystkie elementy konstrukcyjne i montażowe
  • elementy ścian i konstrukcji montowane są za pomocą zszywek, gwoździ i wkrętów
  • impregnację drewna przeciwogniową i przeciwgrzybiczną /Fobos/
  • impregnację podwalin /Fobos/
  • 1 komplet bloczków betonowych

Istnieje możliwość zamówienia:

  • wydzieleń wewnętrznych
  • domu ocieplonego wełną 10 cm lub 15 cm
  • okien drewnianych
  • okiennic na okna
  • paneli podłogowych
  • malowania zewnętrznego
  • instalacji elektrycznych
  • instalacji wod-kan
  • orynnowania
  • utwardzenia terenu
  • fundamentu

 Cennik nie stanowi oferty handlowej w rozumieniu art. 66 par.1 Kodeksu Cywilnego.