You are using an outdated browser. For a faster, safer browsing experience, upgrade for free today.

KAWKA

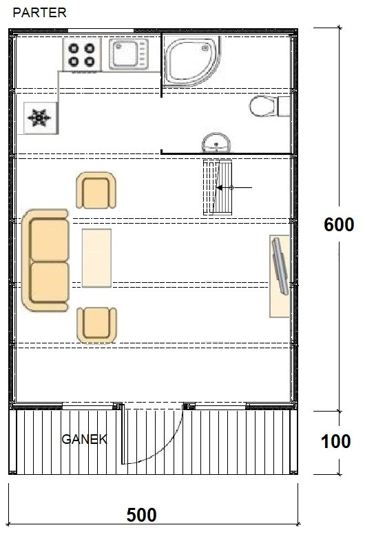
Drewniany dom letniskowy z antresolą na zgłoszenie, o powierzchni parteru 35m2 będący nową odsłoną domów typu brda. W górnej części wykonana antresola o powierzchni 12,18m2. Dom wykonany systemem szkieletowym. Oferowany w wersji ocieplonej wełną gr. 5 cm oraz wełną gr. 10 cm. Wejście do domu przez zadaszony ganek. Na parterze można wydzielić łazienkę, otwartą kuchnię połączoną z pokojem dziennym. Część sypialną zaprojektowano na przestronnej antresoli. Istnieje możliwość powiększenia antrresoli lub przekształenia jej w poddasze. Wysokość ścian parteru +- 240 cm. Kąt dachu: +- 65 stopni. Cena nie obejmuje wydzieleń wewnątrznych widocznych na rzutach domu. 

Cena
Dom ocieplony wełną 5 cm 57.240 zł
Dom ocieplony wełną 10 cm 62.550 zł

+ montaż:18% (dom ocieplony wełną 5 cm) lub 19% (dom ocieplony wełną 10 cm)
wszystkie ceny są cenami brutto. 

W cenie domu względniono:

  • kompletne ocieplenie domu wełną mineralną (podłoga dolna, ściany, dach)
  • ściany wykonane z podwójnej deski o przekroju: deska 16 mm+folia+wełna 5 cm+folia+ deska 12 mm
  • wysokość parteru +-240 cm
  • wykończenie domu w boazerii
  • podłoga wewnętrzna drewniana
  • okna pcv kolor biały 
  • drzwi główne pcv kolor biały wraz z klamką, zamkiem i kluczem do drzwi
  • schodki na poddasze typu drabinkowego
  • zadaszony ganek
  • drewniane barierki na antresoli 
  • na ganku pogłoga wykonana z deski tarasowej ryflowanej
  • dach wykończony w boazerii
  • dach kryty blachą połysk  (kształt i kolor do uzgodnienia)
  • wszystkie elementy konstrukcyjne i montażowe
  • elementy ścian i konstrukcji montowane są za pomocą zszywek, gwoździ i wkrętów
  • impregnację drewna przeciwogniową i przeciwgrzybiczną /Fobos/
  • impregnację podwalin /Fobos/
  • 1 komplet bloczków betonowych

Cennik nie stanowi oferty handlowej w rozumieniu art. 66 par.1 Kodeksu Cywilnego.