You are using an outdated browser. For a faster, safer browsing experience, upgrade for free today.

DZIĘCIOŁ

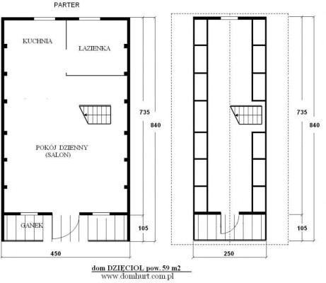
Dom rekreacyjny z poddaszem wykonywany systemem szkieletowym. W standardzie posiada zadaszony balkon i ganek. Dach kryty blachą z możliwością zamówienia innego pokrycia dachowego za dopłatą. Domek oferowany w wersji nieocieplonej lub w wersji ocieplonej wełną mineralną 5 cm. Istnieje możliwość wykończenia domku w płytach gipsowych lub kartonowo-gipsowych, dobudowy tarasu. Domek oferowany w różnych wersjach powierzchniowych od 28m2 do 59 m2. Nie wymaga fundamentu. Schemat budynku można zobaczyć w dodatkowych fotografiach. Cena podstawowa nie uwzględnia okiennic widocznych na zdjęciu. Można je zamówić za dodatkową opłatą. Cena nie obejmuje wydzieleń wewnętrznych widocznych na zdjęciach i rzutach domu.

Powierzchnia całkowita [m2]/ cena [zł] Nieocieplony
kryty blachą
Ocieplony
kryty blachą
pow. 29,4m2 4 segm.
/pow. zabudowy 14,2 m2
30.164,- 33.340,-
pow. 36,74m2 5 segm.
/pow. zabudowy 19 m2
37.695,- 41.663,-
pow. 44m2 6 segm.
/pow. zabudowy 23,6 m2
45.144,- 49.896,-
pow. 51,45m2 7 segm.
/pow. zabudowy 28,3m2
52.788,- 58.344,-
pow. 59m2 8 segm.
/pow. zabudowy 33m2
60.534,- 66.906,-

+ montaż 18%                
wszystkie podane ceny są cenami brutto  

W cenie domu nieocieplonego uwzględniono:

  • ściany wykonane z deski 22 mm
  • podłogę wewnętrzną drewnianą
  • wysokość parteru 207 cm
  • dach dwuspadowy wykończony w boazerii
  • okna pcv kolor biały wraz z klamkami
  • drzwi główne drewniane lub metalowe  wraz z klamką, zamkiem i kluczem do drzwi
  • drzwi balkonowe pcv kolor biały
  • schodki na poddasze typu drabinkowego z poręczą z jednej strony schodów
  • zadaszony balkon
  • zadaszony ganek
  • drewniane barierki na balkonie i ganku
  • na ganku podłogę wykonaną z deski
  • dach kryty blachą połysk (istnieje możliwość pokrycia dachu gontem za dopłatą)
  • wszystkie elementy konstrukcyjne i montażowe
  • elementy ścian i konstrukcji montowane są za pomocą zszywek, gwoździ i wkrętów.
  • impregnację drewna przeciwogniową i przeciwgrzybiczną /Fobos/
  • impregnację podwalin /Fobos/
  • 1 komplet bloczków betonowych

W cenie domu ocieplonego uwzględniono:

  • kompletne ocieplenie domu wełną mineralną gr. 5 cm (podłoga, ściany, dach)
  • ściany wykonane z podwójnej deski o przekroju: deska 16 mm+folia+wełna 5 cm+folia+ deska 12 mm
  • wysokość parteru 207 cm
  • wykończenie domu w boazerii
  • podłogę wewnętrzną drewnianą
  • dolną podłogą ocieploną wełną mineralną 5 cm
  • okna pcv kolor biały wraz z klamkami
  • drzwi główne drewniane lub metalowe wraz z klamką, zamkiem i kluczem do drzwi
  • drzwi balkonowe pcv kolor biały
  • schodki na poddasze typu drabinkowego z poręczą z jednej strony schodów
  • zadaszony balkon
  • zadaszony ganek
  • drewniane barierki na balkonie i ganku
  • na ganku podłogę wykonaną z deski
  • dach ocieplony wełną mineralną 5 cm wykończony w boazerii
  • dach kryty blachą połysk (istnieje możliwość pokrycia dachu gontem za dopłatą)
  • wszystkie elementy konstrukcyjne i montażowe
  • elementy ścian i konstrukcji montowane są za pomocą zszywek, gwoździ i wkrętów
  • impregnację drewna przeciwogniową i przeciwgrzybiczną /Fobos/
  • impregnację podwalin /Fobos/
  • 1 komplet bloczków betonowych

Istnieje możliwość zamówienia:

  • wydzieleń wewnętrznych
  • domu ocieplonego wełną 10 cm lub 15 cm
  • dobudowy tarasu
  • okien drewnianych
  • okiennic na okna
  • paneli podłogowych
  • malowania zewnętrznego
  • ław fundamentowych lub fundamentu z płytą
  • instalacji elektrycznych, wod-kan
  • przygotowania terenu pod dom

Cennik nie stanowi oferty handlowej w rozumieniu art. 66 par.1 Kodeksu Cywilnego.