You are using an outdated browser. For a faster, safer browsing experience, upgrade for free today.

CZAPLA

Dom letniskowy z poddaszem wykonany systemem szkieletowym. Proponowany o powierzchni od 57 m2 do 75 m2. Oferowany w wersji ocieplonej wełną 5 cm jak i w wersji bez ocieplenia. W standardzie posiada zadaszony taras. Konstrukcja domu pozwala na wprowadzanie dowolnych zmian adaptacyjnych i powierzchniowych. Kąt nachylenia dachu 45°. Schemat budynku można zobaczyć w fotografiach.  Proponowany także jako dom mieszkalny. Cena nie obejmuje wydzieleń wewnętrznych widocznych na zdjęciach i rzutach domu.

Powierzchnia całkowita [m2]/ cena [zł] Nieocieplony
kryty  blachą
Ocieplony
kryty blachą
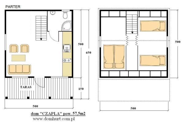
pow. 57,5m2
/pow. zabudowy 25m2
59.495,- 65.705,-
pow. 69m2
/pow. zabudowy 30m2
71.294,- 78.746,-
pow. 75m2
/pow. zabudowy 33m2
77.450,- 85.550,-

montaż 18%
wszystkie podane ceny są cenami brutto

W cenie domu nieocieplonego uwzględniono:

  • ściany wykonane z deski 22 mm
  • podłogę wewnętrzną drewnianą
  • wysokość parteru 220 cm
  • dach wykończony w desce boazeryjnej
  • okna pcv kolor biały wraz z klamkami
  • drzwi główne drewniane lub metalowe wraz z klamką, zamkiem i kluczem do drzwi
  • schodki na poddasze
  • taras całkowicie zadaszony o dł. 150 cm
  • na tarasie podłogę wykonaną z desek
  • dach kryty blachą (istnieje możliwość pokrycia dachu gontem za dopłatą)
  • wszystkie elementy konstrukcyjne i montażowe
  • elementy ścian i konstrukcji montowane są za pomocą zszywek, gwoździ i wkrętów
  • impregnację drewna przeciwogniową i przeciwgrzybiczną /Fobos/
  • impregnację podwalin /Fobos/

W cenie domu ocieplonego uwzględniono:

  • kompletne ocieplenie domu wełną mineralną gr. 5 cm (podłoga, ściany, dach)
  • ściany wykonane z podwójnej deski o przekroju: deska 16 mm+folia+wełna 5 cm+folia+ deska 12 mm
  • wysokość parteru 220 cm
  • wykończenie domu w boazerii
  • podłogę wewnętrzną drewnianą
  • dolną podłogę ocieploną wełną mineralną 5 cm
  • okna pcv kolor biały wraz z klamkami
  • drzwi główne drewniane lub metalowe  wraz z klamką, zamkiem i kluczem do drzwi
  • schodki na poddasze
  • taras całkowicie zadaszony o dł. 150 cm
  • na tarasie podłogę wykonaną z desek
  • dach kryty blachą (istnieje możliwość pokrycia dachu gontem za dopłatą)
  • wszystkie elementy konstrukcyjne i montażowe
  • elementy ścian i konstrukcji montowane są za pomocą zszywek, gwoździ i wkrętów
  • impregnację drewna przeciwogniową i przeciwgrzybiczną /Fobos/
  • impregnację podwalin /Fobos/

Istnieje możliwość zamówienia:

  • wydzieleń wewnętrznych
  • domu ocieplonego wełną gr. 10 cm
  • okien drewnianych
  • okiennic na okna
  • paneli podłogowych
  • malowania zewnętrznego
  • instalacji elektrycznych
  • instalacji wod-kan
  • orynnowania
  • utwardzenia terenu
  • fundamentu

Cennik nie stanowi oferty handlowej w rozumieniu art. 66 par.1 Kodeksu Cywilnego.